PAGE TOP


  甲子園口アーバンライフ                             2000.4 Nishinomiya City
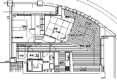
2重床、2重天井を生かした オールフリープランのマンションらしさを表現したモデルルーム

基本の仕様を見せながらも フリーの可能性を見せる

グレードアップではなく 基準の範囲の中でデザインで付加価値を付けることも提案



Copyright PLAN-With.com 2003 all rights reserved